Apartamento com 2 quartos à venda em Caguassu - SP
Rua Seraphim Banietti - Caguassu - Sorocaba/SP
R$ 133.000
R$ 2.714 preço do m²
Parcelas a partir de R$ 1.296
Área total
49m²
Área
49m²
Dormitórios
2
Banheiros
1
Vagas
1
Sobre o imóvel
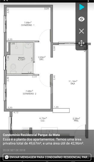
*Apartamento à Venda no Condomínio Parque da Mata, Sorocaba/SP*
- Oportunidade Única! Apartamento localizado no Condomínio Residencial Parque da Mata, bairro Caguassu, Zona Norte de Sorocaba.
- Detalhes do Imóvel:*
- 2 quartos bem distribuíd...
Característica do imóvel
Churrasqueira Garagem Portaria
Instalações do condomínio
Churrasqueira Portaria
Simular financiamento.
Uma forma mais inteligente de comprar seu imóvel.

Corretores associados ao imóvel
Nas proximidades do imóvel
Gastronomia
- Pizzaria Vitória De Sorocaba 597m
- Piatto Bello Pizzaria 682m
Saúde e Bem-estar
- Jorge Waldiney Aleixo Farmácia 879m